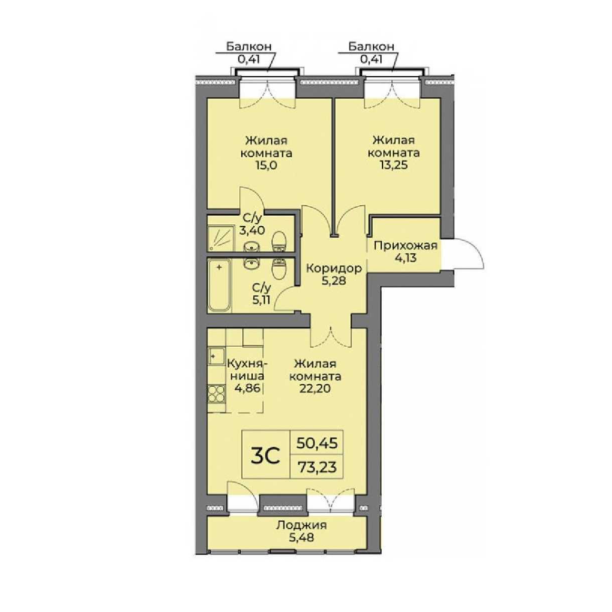
Как же составить чертежи прихожих с размерами: 9 правил
Конечно же, планируя проект прихожей, лучше всего было бы обратиться к специалисту, который произведет соответствующий расчет и разработает вам чертежи прихожей согласно нормативной документации и особенностям вашего жилища, высчитает правильное расстояние между мебелью. Но не всегда мы можем позволить себе подобную роскошь. Поэтому, чаще всего приходится разрабатывать планировку самостоятельно.
Постарайтесь учесть все, чтобы потом не оказалось, что вам некуда сложить дорожные сумки, или лыжи. А может ваш ребенок в следующем году надумает заняться спортом, и его футбольная форма, мяч или скейтборд будут время от времени появляться в разных местах квартиры. Не упустите никаких деталей. Но и не переусердствуйте. Оптимальная площадь комнаты, отведенной под прихожую в доме 9-12 м2. Постарайтесь выдержать пропорции длины и ширины, чтобы прихожая не выглядела не эстетично. Схема расположения предметов мебели должна быть логичной: тумба для обуви должна располагаться возле места для переобувания, а место для переобувания у входной двери.
Составляя план расположения мебели в прихожей, не забудьте предусмотреть свободное пространство для движения дверей, ящиков, откидных полок.
Чертежи прихожей должны содержать следующие параметры:
- Глубина;
- Ширина;
- Высота;
- Количество модулей и элементов в них;
- Количество дверей;
- Места крепления дверей;
- Места крепления дверных ручек;
- Количество светильников и мест вхождения электропровода;
- Места соединений деталей.
И еще один немаловажный факт: ремонт в прихожей в доме лучше всего делать в последнюю очередь.
Планировка студий
Вторая половина 90-х в строительстве ознаменовалась появлением монолитных домов, в которых квартиры сдавались в виде пустого куба, поэтому решение задач по планировке брали на себя владельцы. Надо сказать, что тенденция строительства таких квартир осталась и сегодня, и люди охотно вкладывают деньги в реализацию дизайнерских проектов и ремонты.
Экономический кризис в стране сказался и на состоянии рынка недвижимости. Более всего просел сегмент жилья класса «комфорт», зато наибольшая активизация наблюдается в сегментах «эконом» и «суперэконом» (студии).
Как показывает практика, сегодня наиболее раскупаемыми являются однокомнатные квартиры и студии. Удивительно, но квартиры большой площади, где имеются широкие прихожие и большие кладовки, несколько утратили свою популярность.
Если рассмотреть типичную квартиру эконом класса в новостройке, то она чем-то напоминает хрущевку, но при этом имеет увеличенную кухню до 7 метров и уменьшенную до 15 метров комнату. Эксперты считают такую планировку удачной для проживания одного человека.
Что касается квартир-студий, то они практически все имеют прямоугольную форму. Иногда встречаются Г-образные варианты с так называемым «аппендиксом» для обустройства кухни. Этот пример планировки специалисты считают неудачным, так как кухонный блок должен быть достаточно светлым. Поэтому перед кухней можно поставить раздвижную стеклянную стенку.
Как найти виновника потопа
Почему важно знать, кто виноват? Когда случается обширное затопление, страдает имущество не только владельца квартиры, но и его соседей. Выплачивать компенсацию за ущерб будет тот, чья вина будет доказана. . Виноватыми в потопе могут быть четыре стороны
Виноватыми в потопе могут быть четыре стороны.
- Личная ответственность. Потоп может произойти по случайности — открытый кран, забытая стиральная машинка, растаявший холодильник.
- Ответственность на соседях (третьих лицах). Причиной потопа могло быть поведение соседей, или, к примеру, третьих лиц, проводивших ремонтные работы.
- Ответственность на управляющей компании. Если проблема была в общих коммуникациях, то ответственность несёт УК или ЖЭК. Например, прорванная из-за отсутствия ремонта общая труба.
- Воля случая или внешнее воздействие. Причиной затопления может быть внешнее воздействие, например, погодные условия или незапланированная авария.
Узнать то, кто был виноват, поможет аварийная служба и специалист по ремонту из независимой службы
Поэтому так важно сохранять фото и видео случившегося, акты аварийки и заключения мастера. На их основе будет решаться, что послужило главной причиной потопа, и кто несёт за него ответственность
Если вы живёте в съёмной квартире, обязательно сообщите о произошедшем владельцу жилья. Все дальнейшие вопросы лучше решать в его присутствии. К тому же вам всё равно придётся согласовать с собственником, кто и как будет устранять последствия и делать ремонт.
В случае вины управляющей компании будет необходимо оформить претензию от лица всех пострадавших. Сплотиться с соседями в таком случае будет хорошей идеей: коллективные претензии и иски к УК или ЖЭК имеют больше шансов на быстрое рассмотрение.
В случае вины соседей разумно будет напрямую обратиться к ним. Про то, как это правильно сделать, мы уже рассказывали.
При общении с соседями помните:
- соседи могут сильно нервничать из сложившейся ситуации, и диалог стоит начинать с поиска совместного решения;
- соседи могут быть застрахованы от гражданской ответственности, это упростит процесс компенсации;
- досудебное решение вопроса проще и дешевле, чем судебное;
- в случае спорных моментов лучше решать их через привлечение третьей стороны: независимой службы оценщиков или специалистов по ремонту.
Cохраняйте спокойствие и не ругайтесь. Найти виновного вы успеете, в первую очередь важнее минимизировать последствия потопа. Если соседей нет дома, а телефонами вы не обменивались, сообщите о происшествии консьержу или в управляющую компанию. Они найдут способ связаться с жильцами квартиры.
Если причиной послужила непогода или неприятная случайность, главным помощником в этом случае будет страховая компания. Разумеется, всё не предугадать, но риски в виде непогоды или протекающего крана чаще всего покрываются стандартным полисом по защите имущества от рисков.
8 Ошибок при дизайне маленькой прихожей
1. Отказ от мебели
Какой бы маленькой не была квартира, если есть хоть какая-то возможность разместить мебель, ей надо пользоваться. Хотя бы узкую обувницу. Дизайн всегда вторичен.
Вот реальные фото экстремально малогабаритных прихожих, где мебель реально не влезет:
А вот тут её отсутствие — серьёзная ошибка:
Во 2-ом пункте с правилами подробно про то, как органично вписать мебель в интерьер небольшой прихожей без ущерба для дизайна.
2. Неправильная планировка
В квартирах в панельных домах обычно нет кладовки и гардероба. Поэтому наша цель всеми средствами впихнуть в интерьер:
- Ростовое зеркало
- Место для обуви
- Место чтобы сесть и одеть её
- Открытые вешалки
- Закрытые вешалки
Отсутствие любого из пунктов — грубая ошибка. Обязательно читайте компоновка прихожей для узкого коридора.
Уходя всегда удобно бегло осмотреть себя, поэтому зеркало. Обувь удобнее одевать сидя, а под сидушкой иметь открытое место для её хранения
Важно потому, что она бывает мокрой, и хранить в обувнице не всегда хорошая идея. То же самое и с открытыми вешалками для гостей и мокрой одежды
На фото ниже пространство задействовано не оптимально, хотя по наполнению неплохо.
3. Перегруженный дизайн
Самая распространённая визуальная ошибка — перегруженный дизайн маленькой прихожей.
Не важно в современном у вас стиле ремонт или в классическом — небольшая прихожая всегда должна быть в минимализме, а цветовое решение супер консервативным. Никаких обоев с узорами и рисунками, никаких пано из плитки, ярких цветов и сочетаний кучи отделочных материалов
У вас всегда будет ещё одежда, обувь и другие предметы, плюс зеркала, которые умножат всё это на 2
Никаких обоев с узорами и рисунками, никаких пано из плитки, ярких цветов и сочетаний кучи отделочных материалов. У вас всегда будет ещё одежда, обувь и другие предметы, плюс зеркала, которые умножат всё это на 2.
На фото ниже 6 цветов и текстур и 2 зеркала друг напротив друга. Шансов при такой каше нет.
Все значимые люди пройдут в вашей квартире дальше порога и оценят ваши дизайнерские идеи. А пытаться впечатлить курьеров — плохая затея.
Сравните:
А вот фото реально стильных мини-прихожих:
4. Стык пола
У меня есть подробный материал про пол в прихожей, а с ним по прежнему допускают чудовищную ошибку: делают небольшую зону из плитки возле входной двери и стыкуют её через порожек с ламинатом.
Это самое убогое решение. Во-первых, если зона слишком маленькая, под стык постоянно будет набиваться грязь т.к. площадь загрязнения приличная. Во-вторых, стык ламината и плитки выглядит всегда плохо, и нужно стремиться сделать его на самом узком участке.
5. Ножки и зазоры
Во входную группу всегда попадает грязь, и чем она меньше, тем труднее убирать. Чтобы упростить процесс и поддерживать порядок — избавьтесь от мебели на ножках.
Если это обувница или тумба, то либо подвешиваем на стену, оставляя снизу достаточно места, либо выбираем модель которая полностью укладывается на пол.
Шкаф тоже нужно делать от пола и до потолка. Если потолки высокие и конструктивно такие высокие двери сделать не получается, то опускаем потолок ровно в зоне шкафа. Сверху тоже не должна скапливаться пыль и хлам, плюс это выглядит более эстетично и воспринимается как встроенная монолитная мебель.
6. Проходной выключатель
Все выключатели расположенные возле входной двери обязательно должны дублироваться проходными в другом месте. Иначе вам постоянно придется ходить к двери и опять-таки переносить грязь.
Возле входной двери обычно много органов управления — подумайте о месте заранее.
7. Маленький коврик
Казалось бы мелочь, но дьявол в деталях. И чем меньше площадь, тем важнее эти детали продумывать.
Если у вас нет тамбура и вы разуваетесь в квартире, коврик должен быть большой и вмещать минимум двух человек, независимо от того, насколько мала прихожая.
И не парьтесь, выглядеть это будет нормально. Даже если для выполнения этого условия придётся положить его от стены до стены.
Скучный вид
Зачастую, обстановка прихожей в среднестатистической квартире не отличается необычных дизайнерским подходом, а напрасно, поскольку интересное оформление вблизи входных дверей может положительно влиять на настроение человека, когда тот собирается, к примеру, на важную или волнительную встречу.

Правильно:
Не бойтесь того, что прихожая будет не такой, как привыкли ее видеть соседи, — создавайте обстановку смело, ведь вам здесь жить. Постелите небольшой, но оригинальный коврик, выберите фигурное зеркало, повесьте пару картин с любимым сюжетом, или покрасьте участок стены в красивый необычный цвет.

«Неудобности» современных квартир

Коммуникации в центре квартиры
Очень неудобно, когда рядом со входом расположены вентиляционные шахты или стояки канализации — это мешает изменению конфигураций, сильно затрудняет перепланировку и ремонт.
Вытянутые комнаты
Комнаты-«вагончики» почти всегда выглядят неуютно, и создать в них красивый интерьер проблематично даже для дизайнера. Дальняя часть такой комнаты обычно плохо освещается, а простенки возле окон не дают возможности удобно организовать хранение.

Приватные жилые зоны расположены ближе, чем общесемейные
Например, двери в спальни — буквально рядом со входом в квартиру. Создается атмосфера «проходного двора», полноценно отдохнуть в таких комнатах будет трудно из-за постоянного шума.
Несущие стены в центре квартиры
Когда несущие стены опоясывают буквально каждую комнату, это сильно сужает возможности при ремонте. Сделать в такой квартире перепланировку просто нереально, потому что снос несущей стены — это нарушение закона, потому что опасно для здания.

Маленькая прихожая
Климат в России преимущественно суровый, количество теплой одежды и обуви соответствующее. В прихожей должно быть достаточно места для их хранения, особенно если в квартире проживает несколько человек. После того, как в крошечной прихожей будет размещен вместительный шкаф для пальто и пуховиков, входить в нее можно будет только боком.

Очень большая прихожая
Если вы живете не во дворце, а в квартире скромной площади, то прихожая размером с комнату вряд ли нужна. Такая излишняя парадность неуместна и непрактична.

Ограниченное количество окон
Клиенты архитектурных бюро часто хотят переделать «однушку» в «двушку», «двушку» в «трешку» и т. д. Когда в квартире мало окон, возможности увеличить количество комнат нет — вряд ли кому-то понравятся «подвальчики» без естественного освещения.

Маленький санузел без возможности расширения
Согласно законодательству, расширить «мокрую зону» можно только за счет коридора. Если санузел и коридор маленькие, то и жить некомфортно, и поделать с этим ничего нельзя. В такой ванной не поставишь ни технику, ни мебель для хранения принадлежностей.

Сложная геометрия комнат
Такую комнату сложно обставить даже дизайнеру, что уж говорить о «любителях». В геометрически сложных помещениях часто образуются «мертвые зоны», которые не несут никакой функциональности. Получается, что покупатель заплатил за площадь, но использовать её с пользой для себя не может.

«Мертвые» зоны
В некоторых квартирах есть малофункциональные закутки — когда несущие конструкции отстроят от ограждающих стен. Даже для хранения такую площадь использовать трудно, в итоге она или просто «пропадает», или доставляет дискомфорт.
Запросы будущих жильцов
Для начала стоит определиться со сценариями использования квартиры. От того, кто и как будет в ней жить, во многом зависят и требования к планировке. Например, если семья часто принимает гостей, то гостиная должна быть просторной. И наоборот, холостяку или семье интровертов достаточно диванчика на кухне, а гостиную можно превратить в большую спальню с удобной кроватью. Семьи с маленькими детьми часто предпочитают кухни-гостиные, чтобы можно было готовить и следить за ребенком одновременно.
Если в одной квартире живет большая семья с бабушкой и дедушкой, то лучше предусмотреть и несколько санузлов. Такие санузлы еще называют мастер-ванными при спальнях. Кроме того, хорошо, если квартира будет условно разделена на приватную и общественную части. Благодаря этому можно будет принимать гостей или смотреть телевизор, даже если старшие или младшие члены семьи отдыхают. В спальнях не будет слышно шума из гостиной.
Все эти требования к планировке, конечно, необязательные. Но холостяку или паре без детей второй санузел, просторная гостиная или кухня не всегда нужны, поэтому и переплачивать за них не стоит.
Площадь этих двух квартир одинакова, но в первом случае санузла два, а спальни и кухня с гостиной расположены на максимальном удалении друг от друга. Такая планировка подойдет для семьи, живущей с родителями или детьми
А здесь спальни рядом с гостиной и кухней — не потревожить отдыхающих вряд ли удастся
Подбор цвета
Выбрать оптимальную цветовую гамму для прихожей 2022 непросто и есть смысл довериться специалисту. Ведь подобранная цветовая палитра может быть как приятной, так и раздражающей. И хотя жестких рамок здесь нет и все в целом индивидуально, некоторые рекомендации профессионалы все же дают. Например, соотношение цветов.
Нижняя часть комнаты сделана темнее, средняя часть — светлее, а верхняя часть — более светлым оттенком. Необходимо стараться избегать контрастов, а в случае их использования сделать освещение удовлетворительным с помощью дополнительных осветительных приборов. В современных квартирах коридоры уменьшены, и дизайнер в своем проекте старается максимально расширить пространство, подобрав цвета и другие приемы.
Нейтральная цветовая палитра
Интерьеры в нейтральных тонах — хороший выбор для современной прихожей. Сочетание белого, молочного, песочного и серого цветов отражает практичность и функциональность помещения. Даже при нейтральной цветовой гамме прихожая не будет скучной, особенно в сочетании с глянцевыми и изогнутыми поверхностями.
Нейтральная цветовая палитра радует глаз, теплая и манящая, как того требует современная прихожая 2020 года.
Контрастные сочетания
Прихожие с яркими деталями выглядят по-разному и элегантно, ведь современность идеально подходит для воплощения смелых решений. Насыщенные оттенки можно сочетать с нейтральными цветами или наоборот — создавать контраст с другими запоминающимися цветами.
Мебель, двери или аксессуары желательно «красить» блестяще. В этом случае лучше выбирать закрытые фасады шкафов-купе, чтобы одежда не «скупилась» с основными оттенками.
Естественная гамма
В дизайне современной прихожей часто присутствуют оттенки натуральных материалов — камня, дерева, обожженной глины. Полы под камень в серых тонах удачно сочетаются с деревянными фасадами различных оттенков коричневого.
Песочная палитра и оттенки синего хорошо гармонируют: они ассоциируются с морскими образами. Тона хвойных деревьев и трав в сочетании с деревянными элементами напоминают лес, а тона терракоты и меда очень мягкие и гостеприимные.
Количество окон и темные комнаты
Количество и размер окон в квартире строго регламентированы. Обычно число окон совпадает с количеством помещений в квартире, потому что жилые комнаты и кухни обязательно должны иметь естественное освещение. Но это в теории, а на практике застройщики часто предлагают варианты с кухней-нишей и спальней с фрамугой под потолком или окном в стене между комнатами.
Санузлы, гардеробные и кладовые могут вообще не иметь окон, поэтому обычно их располагают в глубине квартиры. Освещения там не будет хватать даже с учетом окон в стенах между комнатами. Иногда планировка принимает причудливую форму: помещения расширяются по мере удаления от окон. Площадь подсобных помещений в такой квартире больше или равна жилой площади
Поэтому важно оценить, действительно ли они необходимы. Возможно, застройщик просто включил в площадь квартиры часть общего коридора, чтобы увеличить стоимость на несколько сотен тысяч рублей
Один из важнейших параметров квартиры — уровень инсоляции. Он показывает, как долго в квартиру попадает солнечный свет. Дизайнеры и архитекторы считают лучшими квартиры с окнами, которые выходят на юго-запад. В таких квартирах светло большую часть дня. Ориентация только на север считается худшей: света в квартире будет не хватать. Иногда застройщики заранее продумывают планировку типа «распашонка»: на северную сторону смотрят спальни, а гостиная выходит на противоположную сторону дома — на юг. На функциональность квартиры это не повлияет, но постоянно жить в темной квартире некомфортно.
Чтобы обеспечить комфортный уровень инсоляции, в снипе прописали точные размеры оконных проемов. Их отношение к площади пола должно быть не меньше 1:8 и не больше 1:5,5. То есть в комнате площадью 15 м² размер окна может быть от 1,88 до 2,73 м².
Может показаться странным, что в снипе прописан не только минимальный, но и максимальный размер окон. На самом деле слишком большие окна — это тоже проблема. Во-первых, даже с качественными стеклопакетами увеличатся теплопотери — комната с большими окнами будет холоднее. А во-вторых, крупные предметы мебели принято расставлять вдоль стен. В небольшой студии с панорамным остеклением этих самых стен может просто не хватить для шкафа, кровати, дивана и кухонного гарнитура.
В угловых квартирах окон обычно больше, потому что они могут выходить на две стороны. В таком случае большую комнату можно разделить на две изолированные спальни. Конечно, они крошечные, но для семьи с ребенком это выход, если бюджет жестко ограничен
Многие семьи включают балкон в список обязательных требований к квартире. Но если остекленный балкон перекрывает единственное окно, то комната становится темнее. И не стоит думать, что балкон или лоджию удастся каким-то образом присоединить к квартире. Сейчас это запрещено — категорически, без вариантов
Эта планировка кажется нереальной: на 50 м² приходится всего одно окно, а между комнатами полупрозрачные стены. Но такая квартира действительно существует. За время работы интерьерным журналистом ничего хуже я не встречала
Квартиры, которые расширяются по мере удаления от окон, обычно расположены на внутренних углах зданий. Окон в таком жилье мало, и они практически смотрят друг на друга. Из-за этого даже в комнатах с окнами света мало, а в технических помещениях его нет совсем
«Законы против владельцев? Да мы индейцы»
Люди часто осложняют себе жизнь, когда, не желая «возиться с бумажками», не оформляют договорные отношения. Подобное поведение – тенденция, неприятная и закоренелая, которая существует во многом благодаря нашей ментальности. Недоверие к судебной системе, юридическим формальностям, документам… Для многих оформление документов – скорее попытка обмана, способ высасывания денег.
Вот вам пример: в «Адвокатскую газету» обратился арендодатель, который не мог «выселить» арендатора из своего гаража. Договор они не оформили, арендные отношения решили строить на доверии, которое в итоге не оправдалось. В сухом остатке вопрос арендодателя был таким: «Как выселить арендатора из гаража, если он перестал платить, сменил замок и хранит там свои вещи?»
С одной стороны, бери лом, ломай замок, вытаскивай вещи, которые хранятся в помещении. С другой – у их собственника могут возникнуть претензии: имущество пропало, уничтожено и т.д. После чего уже у правоохранительных органов появятся вопросы. Это тем более актуально, если хозяин помещения решил оставить вещи себе, пока арендатор не заплатит. Ведь если нет договора аренды или хранения, удержание чужих вещей незаконно. Такие действия могут быть расценены как хищение имущества.
Итак, собственник гаража получил разъяснения, в которых в том числе заложен следующий контекст: «Заключи вы договор, у вас не было бы таких проблем, вопрос можно было бы решить быстро». В ответ на это человек сетует: «Получается, у нас нет права собственности? Законы против владельцев недвижимости!»
А теперь представьте: вы сами дали пользоваться вашим имуществом, по своей воле. Вы сами решили не оформлять отношения с арендатором. Вы сознательно не прописали пределы использования сданного в аренду помещения, а потом удивляетесь, что не можете получить эффективную защиту. Но ведь человек не винит погоду, если не надел перчатки и обморозил руки, так?
Судебная защита будет работать только при условии соблюдения закона, равно как право собственности можно защитить только при условии соблюдения банальной правовой гигиены. Эти простые истины относятся к любым сделкам с недвижимостью – и не только.
Какой цвет выбрать для интерьера прихожей?
Такой, который сочетается с цветами интерьера остальных комнат, но при этом остается практичным и функциональным в использовании.
Белый
Например, белый. Он визуально расширяет пространство и добавляет освещенность даже там, где изначально не предусмотрены окна. Идеально сочетается со всеми оттенками цветовой палитры. А практичность и функциональность его использования больше зависит от используемого материала и его текстуры.
Черный
Стильное и нестандартное решение. Больше подходит для больших и просторных прихожих, чем для маленьких и узких.
Недостаток освещенности в таком пространстве необходимо компенсировать качественными светильниками.
Бежевый
Теплый нейтральный оттенок, который уместен для большинства популярных стилей оформления интерьера. Бежевый не настолько маркий как белый, но и не такой давящий как черный. Сочетается со многими другими цветами: коричневым, голубым, синим, зеленым, бордовым.
Серый
Серый в интерьере для нас нечто новое и необычное. И совершенно зря! Ведь серый настолько многогранен и настолько практичен с точки зрения уборки, что его можно использовать буквально во всех стилях оформления прихожей! От классик до лофта, от эко до прованса — серый цвет уместен везде.
Яркие краски
Для тех, кому интересны более насыщенные и яркие краски в оформлении интерьера прихожей, мы приготовили несколько впечатляющих идей. Какие из них вам по душе и как именно можно их использовать в своем доме — решайте сами.
Правила и нормативы
1. Перенос разрешен, если:
- Стена между жилой комнатой (гостиной) и коридором не является несущей.
- Под вашим коридором, в который вы собираетесь перенести мойку и плиту, не располагается жилая комната соседей снизу (это условие соблюдается почти во всех случаях: в типовых домах под коридорами располагаются такие же коридоры).
- Площадь новой кухни по проекту составляет не менее 5 квадратных метров и помещение обеспечено инсоляцией.
- При переносе кухни в присоединенный к гостиной коридор вытяжка от плиты проходит через вентканал бывшей кухни. Труба канализации может выходить в любой близлежащий стояк.
- Если ваша квартира расположена на первом этаже, переносить кухню можно в любое место — у вас нет соседей снизу, а значит, ваша перепланировка не создаст никому потенциальных проблем или угроз.
Выводите клиентов на диалог
С точки зрения диалога «клиент-компания», есть два типа клиентов:
- первые открыто делятся своими «хотелками» и недовольством;
- вторые молча уходят, если что-то пошло не так.
Для первых существует служба клиентского сервиса, как бы она у вас ни называлась. А вот со вторыми необходимо действовать проактивно и инициировать с ними диалог.
Кстати, возвращаясь к первому пункту: больше всего «шумят» как раз не самые приоритетные клиенты, и в итоге ценные ресурсы бизнеса отвлекаются на решение их проблем, игнорируя тех самых приоритетных, которые долго молчат, а потом так же (молча) уходят.
Важно не только инициировать диалог, но ещё и правильно его провести. В этом случае поможет техника СustDev (от англ
customer development — «развитие клиента») — тестирование востребованности разрабатываемого продукта или гипотезы с помощью обратной связи от потенциальных клиентов — прим. «Секрета»), которая чем-то напоминает работу следователя: то, что мы хотим выяснить, — не совсем то, что мы спрашиваем.
«Довольны ли вы покупками в нашем магазине?» — казалось бы, хороший вопрос, но ответ на него вряд ли будет информативным и подойдет, скорее, для количественного исследования, позволив посчитать процент довольных и недовольных.





























